Skip to content

Oferta

Projektowanie

Twój pomysł, nasza misja!

Bezkompromisowo podchodzimy do każdego wyzwania, czego końcowym efektem jest projekt spełniający nawet najwyższe wymagania naszych Klientów.

Funkcja (bezpłatna)

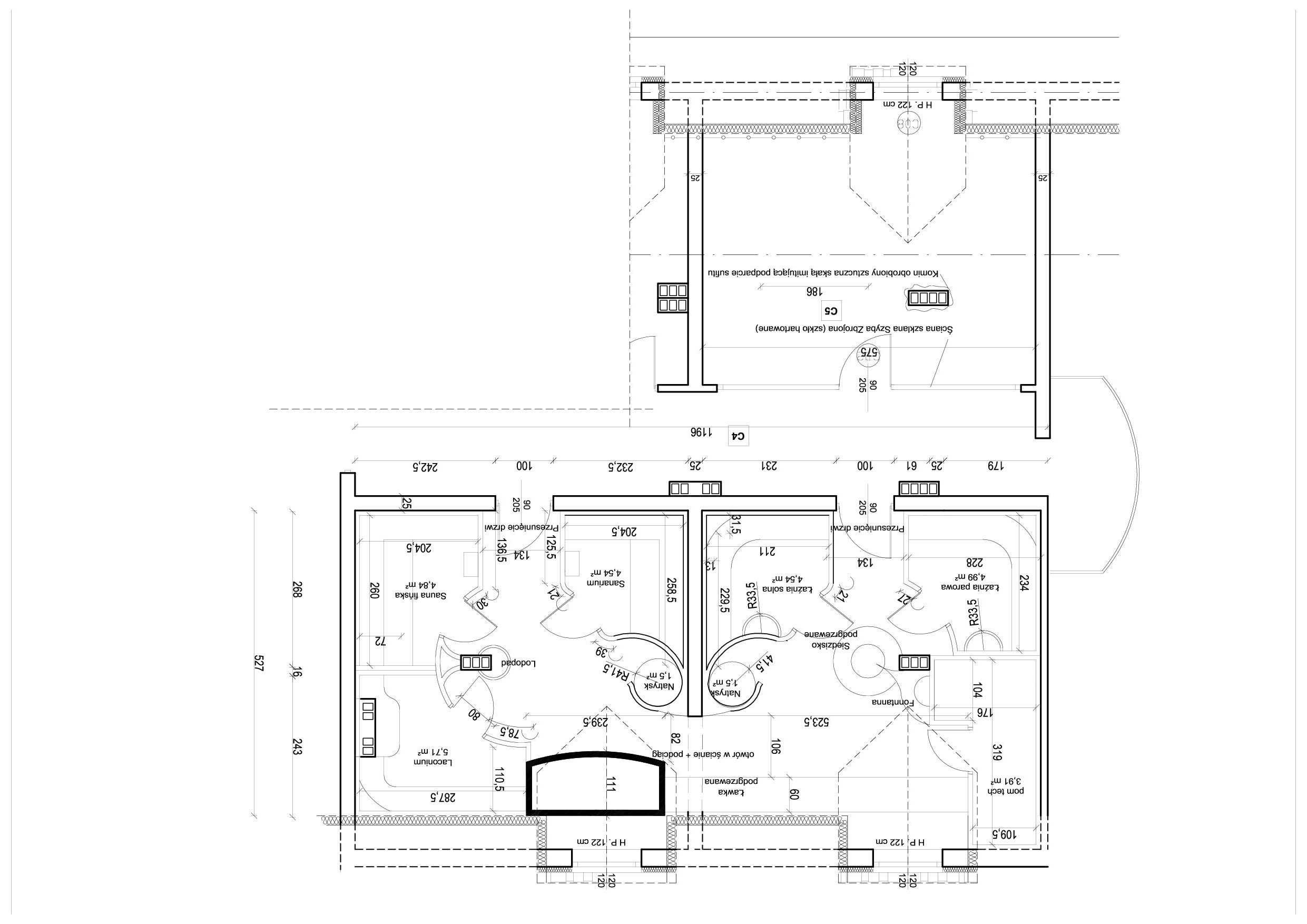
Firma Spa&Fit wykonuje bezpłatnie projekt funkcji obejmujący rzut z rozplanowaniem poszczególnych pomieszczeń funkcyjnych – poniżej przedstawiamy przykładowe rozwiąznie funkcyjne.

Przykładowe

Rozwiązania funkcyjne

Odpłatny projekt funkcjonalno-technologiczny 

Kolejnym krokiem po zaakceptowaniu funkcji jest odpłatny projekt funkcjonalno-technologiczny do projektu architektonicznego zawierający:

  • Rysunki w postaci rzutu

    z dokładnym wymiarowaniem wszystkich pomieszczeń

  • Przekroje technologiczne pomieszczeń SPA

    (projektowanego zakresu)

  • Wytyczne dla branżystów:

    a) Wytyczne wod-kan z naniesieniem poszczególnych podejść wodnych z określeniem ich miejsca oraz średnicy poszczególnych podejść. Projekt instalacji wodno-kanalizacyjnej wykonuje projektant branżowy z uwzględnieniem wydanych wytycznych.
    b) Wytyczne elektryczne z naniesieniem poszczególnych miejsc doprowadzenie przewodów elektrycznych (proponujemy zabezpieczenie i przekroje kabli). Projekt tablic i podejść przewodów wykonuje projektant branżowy który dodatkowo dobiera zabezpieczenia i przekroje przewodów wg obliczeń.
    c) Wytyczne wentylacyjne z naniesieniem miejsc doprowadzenie przewodów wentylacyjnych (wydajemy dokładne ilości wymienianego powietrza ). Wszystkie podejścia powietrza wyciąganego i nawiewanego). Wszystkie trasy i przewody wentylacyjne projektowane są przez projektanta branżowego.
    d) Wytyczne do ewentualnego ogrzewania podłogowego

  • Rozwinięcia ścian z naniesieniem rodzaju okładzin

    (o ile projekt obejmuje aranżację)

  • Wizualizacje pomieszczeń

    (o ile projekt obejmuje aranżację)

  • Opis techniczny wykonania wszystkich pomieszczeń

     z dokładnym podaniem zastosowanych materiałów

Lucid_Origin_A_stunning_and_vibrant_cinematic_photo_of_Handdra_2(1)
Lucid_Origin_A_stunning_and_vibrant_cinematic_photo_of_Handdra_7

Odpłatny projekt funkcjonalno-technologiczny 

Kolejnym krokiem po zaakceptowaniu funkcji jest odpłatny projekt funkcjonalno-technologiczny do projektu architektonicznego zawierający:

  • Rysunki w postaci rzutu

    z dokładnym wymiarowaniem wszystkich pomieszczeń

  • Przekroje technologiczne pomieszczeń SPA

    (projektowanego zakresu)

  • Wytyczne dla branżystów:

    a) Wytyczne wod-kan z naniesieniem poszczególnych podejść wodnych z określeniem ich miejsca oraz średnicy poszczególnych podejść. Projekt instalacji wodno-kanalizacyjnej wykonuje projektant branżowy z uwzględnieniem wydanych wytycznych.
    b) Wytyczne elektryczne z naniesieniem poszczególnych miejsc doprowadzenie przewodów elektrycznych (proponujemy zabezpieczenie i przekroje kabli). Projekt tablic i podejść przewodów wykonuje projektant branżowy który dodatkowo dobiera zabezpieczenia i przekroje przewodów wg obliczeń.
    c) Wytyczne wentylacyjne z naniesieniem miejsc doprowadzenie przewodów wentylacyjnych (wydajemy dokładne ilości wymienianego powietrza ). Wszystkie podejścia powietrza wyciąganego i nawiewanego). Wszystkie trasy i przewody wentylacyjne projektowane są przez projektanta branżowego.
    d) Wytyczne do ewentualnego ogrzewania podłogowego

  • Rozwinięcia ścian z naniesieniem rodzaju okładzin

    (o ile projekt obejmuje aranżację)

  • Wizualizacje pomieszczeń

    (o ile projekt obejmuje aranżację)

  • Opis techniczny wykonania wszystkich pomieszczeń

     z dokładnym podaniem zastosowanych materiałów

Lucid_Origin_A_stunning_and_vibrant_cinematic_photo_of_Handdra_2(1)
Lucid_Origin_A_stunning_and_vibrant_cinematic_photo_of_Handdra_7

Przykładowe

Koncepcje

Skontaktuj się z nami!

Jeśli szukasz profesjonalnej firmy, która zajmie się twoim projektem SPA i Welness, to jesteś w dobrym miejscu. Zapraszamy do kontaktu! Z przyjemnością odpowiemy na wszystkie pytania i doradzimy najlepsze z możliwych rozwiązań.